
Unser Haus der Demenz soll Mut machen!
Das DemenzForum plant ein Haus der Demenz in Darmstadt, ein Memory-Haus, das offen und für Betroffene leicht zugänglich ist. Wir möchten Mut machen. Wir wollen ein Haus, dass nicht nur das Schwere thematisiert, sondern vielmehr vermittelt: Das Leben geht auch mit einer Demenz weiter! Ähnlich wie ein Hospiz dem Sterben ein Stückweit den Schrecken nehmen kann, wollen wir mit unserem Memory-Haus dem Leben mit Demenz ein Stückweit Perspektive geben.
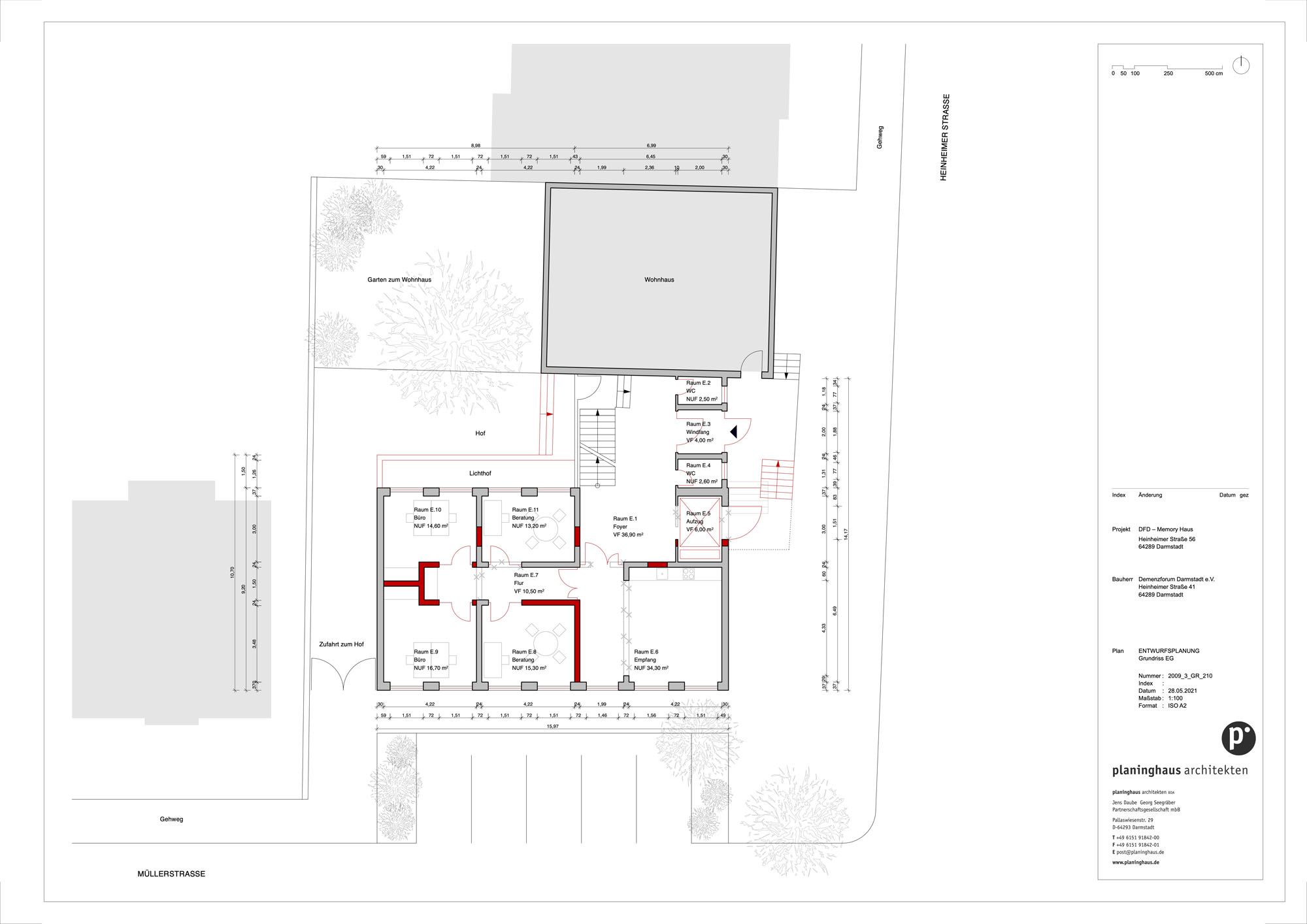
Ganz konkret, das Memory-Haus in der Heinheimer Str. 54:
Die Immobilie, deren Umbau wir im Moment konkret planen, ist in unseren Augen gut geeignet für ein Haus der Demenz. Das ehemalige Jugendhaus liegt mitten im lebendigen Martinsviertel in Darmstadt und ist hell, freundlich und offen.
Das Treppenhaus ist sehr hell und lichtdurchflutet und signalisiert in seiner Bauart bereits Offenheit und Freundlichkeit. Vom Treppenhaus betritt man zunächst den offenen Bereich des DemenzForums (35 m²); im hinteren Bereich des EG sind vier Büroräume. In zweiten Stock können auch Beratungen durchgeführt werden; ein dritter Beratungsraum ist im UG. Der große Saal im Obergeschoss mit ca. 100 m² soll für Betreuungsangebote genutzt werden und erhält eine Mitmach-Küche. Eine Faltwand sorgt für die Möglichkeit der Verkleinerung. Gleichzeitig bleibt der Saal für große Veranstaltungen gut nutzbar und kann auch fremdvermietet werden. Im Untergeschoss wollen wir die beiden Räume mit ausreichend Tageslicht nutzen, den kleinen für Beratungen, den großen als Seminarraum.
Ohne Anmeldung „einfach vorbeikommen“
Das Memory-Haus ist an mehreren Nachmittagen in der Woche geöffnet. Kernstück ist der Offene Bereich im Erdgeschoss mit der Teeküche, der anschließt an Büros und Beratungszimmer. Hier gibt es einen Kaffee, Zeitschriften und eine Ausstellung praktischer Hilfsmittel bei Demenz (eine sog. „Dementhek“), und es ist immer eine Gesprächspartnerin in Sichtweite.
Halbtagsbetreuung und Nachtcafé
Bislang gibt es in Darmstadt kein TagespflegeAngebot, welches später als 9.00 Uhr beginnt. Wir wollen an zwei oder drei Nachmittagen eine Art Halbtags-Betreuung einrichten, die erst nach dem Mittagessen (13.30 Uhr) beginnt und bis 17.30 oder 18.00 Uhr geht. Für eine Tagespflege sind die Räume zwar zu klein, für eine Halbtagsbetreuung sind die räumlichen Voraussetzungen im großen lichtdurchfluteten Raum im Obergeschoss (mit Küche und Ruhezone) ausgezeichnet.
An ein oder zwei Abenden pro Woche wollen wir außerdem ein Nacht-Café initiieren, und zwar in Form einer abendlichen Betreuungsgruppe von 19.00 bis 22.00 Uhr. Für die Angehörigen würde das regelmäßig einen freien Abend in der Woche bedeuten, was mit Sicherheit für viele attraktiv ist. Auch ein solches Angebot gibt es bisher in Darmstadt nicht.
Öffnung ins Viertel hinein
Der große Raum im Obergeschoss eignet sich auch hervorragend dazu, das Haus ins Viertel hinein zu öffnen und zu Veranstaltungen einzuladen. Dabei ist uns besonders wichtig, das Haus für Menschen mit und auch ohne Demenz zu öffnen und darüber Berührungsängste abzubauen. Möglichkeiten zur Begegnung verhelfen den Angehörigen und den Menschen mit Demenz zu einem „normalen“ sozialen Leben, und dieses ist gleichzeitig ein gutes Mittel der Sekundärprävention gegen Demenz. Ein paar Ideen:
- Mittagstisch für ältere Menschen am Samstag,
- andere Angebote für Senioren wie Gedächtnistraining,
- Bewegungsangebote, Yoga, Lach-Yoga etc.,
- Lesungen und Konzerte an den Abenden usw.
Wir verbinden damit die Hoffnung, dass diese Öffnung zu Berührungspunkten von Betroffenen und nicht von Demenz Betroffenen führt und ein Miteinander einfacher macht und normalisiert. Es muss uns darum gehen, den Menschen mit Demenz einen Platz im sozialen Leben anzubieten und Möglichkeiten zur Partizipation auszubauen.
Finanzielle Unterstützung ist willkommen!
Das DemenzForumDarmstadt finanziert sich aus unterschiedlichen Quellen:
-öffentliche Zuschüsse der Stadt Darmstadt und des Landkreises Darmstadt-Dieburg
- Mitgliedsbeiträge und Spenden
- Stiftungen und Sponsoren
- bezahlte Dienstleistungen.
Wir sind geübt in der Spendenakquise; das Memory-Haus hat allerdings eine neue Dimension für uns. Die Sanierung und der Umbau des ehemaligen Jugendhauses zu einem barrierefreien und energetisch ertüchtigen Haus der Demenz wird uns etwa eine Million Euro kosten. Wir erwerben das Grundstück in der Heinheimer Str. 54 in Erbpacht und kaufen das darauf stehende Max-Rieger-Heim.
Interesse an einer Führung durchs Haus?
Wenn Sie sich vorstellen können, unser Projekt Memory-Haus zu unterstützen, wenden Sie sich gern persönlich an uns: Brigitte Harth 06151/96 79 96. Wir berichten Ihnen über unsere Planungen und den aktuellen Stand, beantworten Ihnen Ihre Fragen und laden Sie natürlich auch zu einer Hausführung ein.
Spenden Bitte gern auf unser Konto bei der Sparkasse DA!
IBAN: DE72 5085 0150 0009 0048 15
Wir freuen uns über jeden Beitrag und informieren Sie automatisch über den Fortgang des Projekts.
Alle Informationen sowie Fotos und Pläne zum Projekt finden Sie auch in kompakter Form zum Ausdrucken im angehängten Flyer.
| PDF-Datei Memory_Haus_Flyer.pdf anzeigen bzw. herunterladen. (828 kB) |